la borda cooperative housing
Architect:
Lacol
Year:
2014
Location:
Barcelona, Spain

The process of La Borda begins in 2012 in the framework of the campaign to reclaim the brown site of Can Batlló, where a group of neighbours decided to self-organize to solve the need for access to housing collectively. This small group started the implementation of a housing cooperative based on the right of use. Lacol is a cooperative of architects involved since the beginning of the promotion, driven by the motivation to build an alternative in the context of a severe housing crisis in Barcelona. This engagement becomes an opportunity to rethink the production of popular housing from the bottom-up and with the participation of future users.This text describes those characteristics of the promotion process of the housing cooperative La Borda that have marked the approach and development of the architectural project.
La Borda's commitment to a community model, as opposed to the more traditional public or private promotions, has made it possible to overcome some significant limitations imposed on architectural projects. The fear of the unknown future user makes it impossible to introduce changes that may affect a standardized way of living in the public sector. The market logic that impoverished housing takes for private developers helps facilitate their assimilation to a consumer object.
The cooperative and future users guide, control and develop the entire process through an internal structure that fosters direct participation, using work commissions and a monthly general assembly. The cooperative only have technical teams specialized in tasks that their members cannot assume. The involvement of future users is one of the most significant unknowns for the development of architectural projects, and to clarify; it becomes this project's starting point.
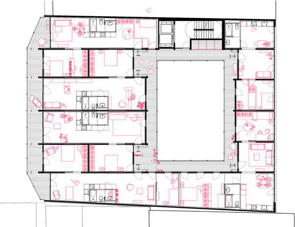
The exhaustive knowledge of the future inhabitants and their real needs has challenged the pre-established types of user patterns and the regulations regarding housing to adopt any decision to the specific requirements of the cooperative. The user's active participation has been integrated into all phases: design, construction, and management of the building. The future inhabitant participates in the collaborative design of the whole building through thematic workshops that allow taking advantage of the group's collective intelligence, delegating co-responsibility to the user concerning project decisions. These processes increase awareness and training and stimulate the feeling of community and belonging.

The La Borda Cooperative Housing project by LACOL Architects is an example of New Wood Open Architecture clarifying the value of active participation throughout the design, construction and ongoing maintenance of a high-density cooperative housing building. The project adopts an alternative model for housing provision that aims to incorporate the energy of the future inhabitant at the earliest stages of the project's development. LACOL Architects acts as a facilitator, collecting and synthesizing the needs and wants of the collective participants during the design stage. During construction, the future inhabitants are meaningfully integrated into the process, offering a more substantive role in the project's physical assembly. Participation at this stage also fosters meaningful connections between participants, which will later blossom into a strong sense of community after the project is complete. The resulting architecture also demonstrates these ideas through its material and technical resolutions. The wood post-and- beam-structure acts as a scaffolding for which the individual can build upon and appropriate. This scaffold concept allows for individual expression within the single dwelling unit while still benefiting from the standardization and modularity of the collective building.
analysis






























































